市町村のゴミ問題【電源不要・工事不要】山林のゴミ捨て防止【15台でこの価格】全商品!【ロット特別価格】
●不法投棄監視を目的とした録画装置内蔵の移動式監視用看板です。
電源はソーラーパネルから供給されますので定期的なバッテリー交換の必要はありません ●不法投棄を警告する看板と、夜間の威嚇用センサーライト、蓄電用バッテリー (バッテリーコントローラー内蔵)及び、SDカード録画装置(NS-32SDR)から構成されています ●カメラは、省電力タイプの低照度カメラ(最低照度0.0003Lux)を採用して いますので、街灯等付近にわずかな明かりがあれば夜間の撮影も可能です ●録画部の記録媒体は、SDカードを使用していますので、録画データを簡単に 取り出し、持ち帰ってお手持ちのPCでタイムリーに再生、保存が可能です ●録画装置のモーション録画を使用すれば、撮影範囲に人が入った時のみ自動的に録画を開始することもできます ●32GB SDHCカードで約1ヵ月録画保存ができます。
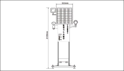
(以降自動上書き) (解像度:704×240、3フレーム/秒、画質:普通の録画設定の場合) ※設置場所の日照時間が短い場合や天候によっては電源供給が停止し、再度ソーラーパネルから 電源供給を開始するまでは録画は一時停止しますので、設置環境についてはご配慮願います 撮像素子 映像入力 1CH 1.0vp-p/75Ω(RCAメス/専用アダプタ) 映像出力 1CH 1.0vp-p/75Ω(RCAメス/専用アダプタ) 録画 圧縮方式 H.264 録画モード 連続/モーション/アラーム/スケジュール(併用録画可) 録画レート 30,15,10,6,3,1fps 解像度 704×480/704×240/352×240 モーション録画 感度設定(高/普通/低)、動体検知マーク設定可 再生 表示 1CH(PC/TV) 検索モード 日時、イベント(アラーム、モーション)/ファイル毎 再生速度 ノーマル、早送り(×2,4,8,16)、巻戻し(×2,4,8,16)、一時停止 その他 記録媒体 SD,SDHCカード(最大32GB) 推奨メーカーSanDisk ファイルシステム FAT32(推奨)、FAT16 最大録画ファイル数 2,000ファイル アラーム入出力 1入力/1出力(TTL3.3V) 本体 寸法 800(W)×2100(H)×850(D)mm 重量 48Kg 定格電圧 カメラ用 12V 録画装置用 12V 本体材質 鋼板、アルミニウム バッテリー 種類 小型シール鉛蓄電池 12V/42Ah 寸法 163(W)×170(H)×197(D)mm 重量 14kg ソーラーパネル 最大出力 40W 寸法 625(W)×555(H)×35(D)mm 重量 5Kg 録画部 録画部仕様のとおり ソーラーライト ライト探知角 寸法 75(W)×204(H)×160(D)mm LEDタイプ MAX140° 3W 探知距離:MAX6m 重量 400g ソーラー部 寸法 98(W)×196(H)×50(D)mm 0.33W 重量 220g 材質 PC樹脂 カメラ部 撮像素子 1/3インチCCD 48万画素 NS-65WDC 最低照度 0.0003Lux(感度アップ×128倍) 寸法(ハウジング本体) 140(W)×138(H)×315(D)mm 重量(カメラ含む) 2Kg 本体材質 アルミニウム 組付時 寸法 920(W)×2100(H)×850(D)mm 重量 70Kg 詳しくはお問い合わせ下さい。
【不法投棄監視システム 製作過程】【お客様のご要望に合わせて作成いたします。
】【ご質問などお気軽にお問い合わせ下さい!】★
今回のお客様は2台のご注文でした。
ですので土台も2台から。
★
お客様の要望で台数、太陽光パネルの数など柔軟に対応します!★
カメラはケースに内蔵し防塵防水に対応します。
★
組立にはある程度の電気技術が必要ですが、組立後の発送にも対応します(*゜▽゜*)★
組立最終段階。
全面に取り付けるパネルには複数の言語にし、防犯性、威嚇性をUP!★
パネルのデザインも柔軟に対応いたします。
まずは、お気軽にお電話ください!!!☎0550-78-6182 fax 0550-78-6181当社は★
柔軟★
迅速★
猫の手をモットーに防犯のお手伝いをいたします!
- 商品価格:13,750,000円
- レビュー件数:0件
- レビュー平均:0(5点満点)



